Verhuurd:Klaprooslaan 7, 3871 GE Hoevelaken - Foto
Verhuurd
+17

Klaprooslaan 7 3871 GE Hoevelaken

  • Woonhuis
  • 4 kamers
  • 3 slaapkamers
  • 1 badkamer
  • Bouwjaar 1960
  • 165 m² perceeloppervlakte
  • 83 m² gebruiksoppervlakte
  • Gestoffeerd
  • D Energielabel D

Beschrijving

Let op: Er worden geen nieuwe aanvragen meer in behandeling genomen. Fully booked.

In het centrum van Hoevelaken gelegen gestoffeerde eengezinswoning met moderne badkamer, keuken, drie slaapkamers, volledig dubbel glas, voor-en achtertuin. De woning is gelegen in een rustige kindvriendelijke omgeving met voldoende parkeergelegenheid. De basisschool en supermarkt bevinden zich op loopafstand alsmede het winkelcentrum. De uitvalswegen (A1 en A28) zijn nabij en goed bereikbaar.

Reageren graag via "plan een bezichtiging".

VERHUURVOORWAARDEN
- maandhuur € 1.600, - excl. nutsvoorzieningen; gas, water en elektra;
- huurcontract voor een tijdelijke verhuurperiode (minimum 12 en maximaal 24 maanden);
- inkomensnorm: bruto (gezamenlijk) inkomen van minimaal 3x de maandhuur;
- waarborgsom: 1 maand huur;
- huisdieren uitsluitend in overleg toegestaan;
- de woning wordt gestoffeerd, leeg en ontruimd ter beschikking gesteld;
- roken in de woning is niet toegestaan;
- gunning voorbehoud eigenaar;
- garantstelling (bijv. door ouders) is niet toegestaan;
- geen woningdelers, studenten of vrienden.

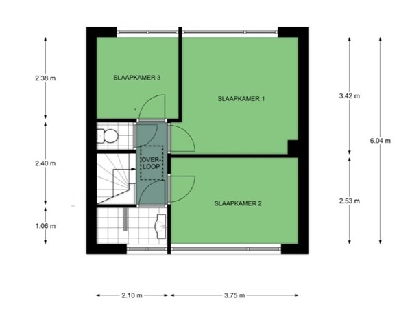
Indeling

Entree: hal met trap-/meterkast en toilet, biedt toegang tot de keuken en woonkamer. Tuingerichte woonkamer, voorzien van vloerverwarming met laminaatvloer en afzonderlijke warm & koud airco, 2022. Aan de voorzijde voorzien van rolgordijnen; aan de achterzijde openslaande deuren met (inbetween) gordijnen. De keuken is voorzien van diverse apparatuur o.a. een afzuigkap, koelkast, vaatwasmachine en wasmachine.

De diepe zonnige achtertuin, met veranda, is gelegen op het zuidwesten met achterom. In het verlengde van de veranda bevindt zich de bijkeuken/schuur met Amerikaanse koel/vriescombinatie en droger. Elektrisch zonnescherm (2023) over de gehele breedte van de woning, aan de achterzijde.

Eerste verdieping

Op de overloop bevindt zich een vaste trap naar de bergzolder met een bergkast en de CV-opstelling.
Drie slaapkamers, allen voorzien van een laminaatvloer, gordijnen en vitrage. De master bedroom is voorzien van een warm & koud airco, 2022 en kledingkast.
De badkamer is voorzien van een inloopdouche en wastafel. Separaat 2e toilet.

Tweede verdieping

Bergzolder met dakraam.

Tuin

Zuidwest ligging.

Bijzonderheden

VERHUURVOORWAARDEN
- maandhuur € 1.600, - excl. nutsvoorzieningen; gas, water en elektra;
- huurcontract voor een tijdelijke verhuurperiode (minimum 12 en maximaal 24 maanden);
- inkomensnorm: bruto (gezamenlijk) inkomen van minimaal 3x de maandhuur;
- waarborgsom: 1 maand huur;
- huisdieren uitsluitend in overleg toegestaan;
- de woning wordt gestoffeerd, leeg en ontruimd ter beschikking gesteld;
- roken in de woning is niet toegestaan;
- gunning is voorbehouden aan de eigenaren;
- garantstelling (bijv. door ouders) is niet toegestaan;
- geen woningdelers, studenten of vrienden.

Kaart

Kenmerken

Overdracht

Referentienummer
00231
Huurprijs
€ 1.600,- per maand (gestoffeerd)
Borg
€ 1.600,-
Inrichting
Ja
Inrichting
Gestoffeerd
Status
Verhuurd
Aanvaarding
Direct
Aangeboden sinds
Woensdag 3 januari 2024
Laatste wijziging
Maandag 15 januari 2024

Bouw

Type object
Woonhuis, eengezinswoning, tussenwoning
Soort bouw
Bestaande bouw
Bouwperiode
1960
Dakbedekking
Dakpannen
Type dak
Zadeldak
Keurmerken
Energie prestatie advies
Isolatievormen
Dubbel glas
Spouwmuren
Vloerisolatie

Oppervlaktes en inhoud

Perceeloppervlakte
165 m²
Woonoppervlakte
83 m²
Inhoud
350 m³
Oppervlakte externe bergruimte
6 m²

Indeling

Aantal bouwlagen
3
Aantal kamers
4 (waarvan 3 slaapkamers)
Aantal badkamers
1 (en 2 aparte toiletten)

Locatie

Ligging
Aan rustige weg
Dichtbij openbaar vervoer
In centrum
In woonwijk
Nabij school
Nabij snelweg

Energieverbruik

Energielabel
D

CV ketel

Warmtebron
Gas
Bouwjaar
2020
Combiketel
Ja
Eigendom
Eigendom

Uitrusting

Warm water
CV-ketel
Verwarmingssysteem
Airconditioning
Centrale verwarming
Vloerverwarming (gedeeltelijk)
Ventilatie methode
Natuurlijke ventilatie
Badkamervoorzieningen
Douche
Wastafel
Heeft airco
Ja
Glasvezelaansluiting aanwezig
Ja
Heeft schuur/berging
Ja
Heeft een dakraam
Ja

Kadastrale gegevens

Kadastrale aanduiding
Nijkerk C 2191
Perceeloppervlakte
123 m²
Omvang
Geheel perceel
Eigendomsituatie
Eigen grond
Kadastrale aanduiding
Nijkerk C 3251
Perceeloppervlakte
42 m²
Omvang
Geheel perceel
Eigendomsituatie
Eigen grond

Media

Plattegronden